×
VerkoopVerhuurNieuwbouwContact

Schatting Realisaties

NL FR

Recent appartement met ruime terrassen en open zicht

€ 1.150
Ref. Zilt 21
1 1 74 m² 86 m²
Instapklaar

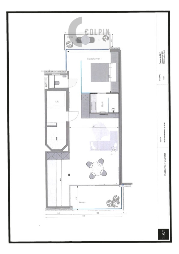
Mooi recent appartement met centrale ligging en open zicht.
Indeling: Woonkamer met aansluitende keuken. Ruim terras vooraan. Slaapkamer met aansluitende badkamer. Gastentoilet. Ruim zuidgericht terras achteraan. Privatieve kelder. Twee fietshaken.
Bijkomende algemene onkosten 75 euro per maand.
Contacteer Immo Colpin om uw bezoek in te plannen!

Thibo Van Haecke
+32 (0)479721978

Interesse in dit vastgoed?

Vereiste velden *

Specificaties:

Type: Appartement
Bouwjaar: 2017
Algemene staat: Instapklaar
Slaapkamer(s):1
Bewoonbare opp. m²: 74
Totale opp. m² incl. terras: 86
Adres: Knokkestraat 224
8301, Heist-aan-Zee
Beschikbaar: Vanaf 16 april
Verdieping: 2
Lift: Ja
K.I.:

Indeling:

Slaapkamer1
Keuken1
Badkamer1
Woonkamer1
Terras2
Toilet1

Technische info:

Watertoets:
Niet overstromingsgevoelig
Zone: Niet van toepassing
G-score A
P-score A
Stedebouwkundige info:
Dagvaarding : Nee
Vergunning: Ja
Bestemming: Woongebied
Voorkooprecht: Nee
Verkavelingsvergunning: Nee
Energie:
Label:
EPC Waarde:
102 kWh/m²
EPC ref.:
Top